Description
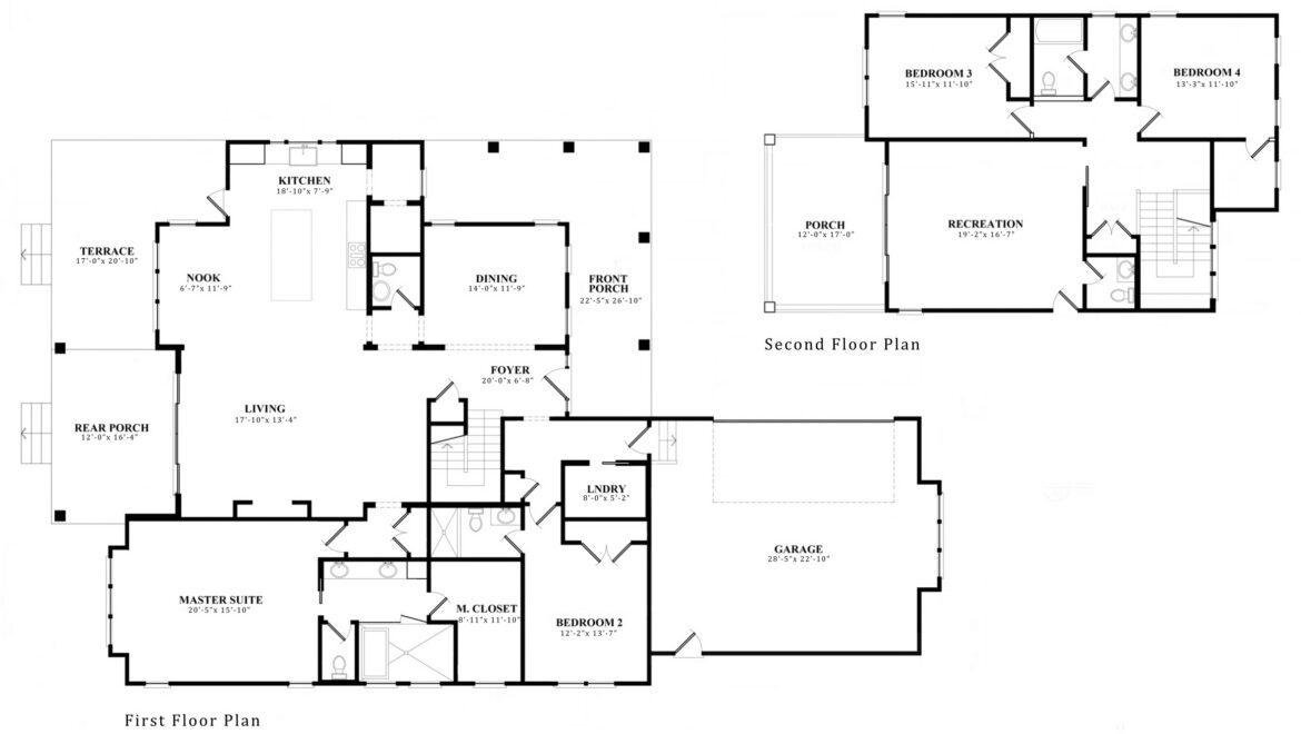
The Virginia Creek by Hardison Building is an exceptional coastal-inspired home designed to capture both comfort and breathtaking natural surroundings. Offering four bedrooms plus an upstairs recreation area, this thoughtfully crafted floorplan provides generous space for everyday living and effortless entertaining. An expansive rear porch and terrace create a stunning backdrop for the home, delivering elevated, sweeping views of Virginia Creek and seamlessly extending the living space outdoors.
The main level features an open-concept layout where the living room, kitchen, and breakfast nook flow together beautifully, all oriented toward the rear porch for maximum light and views. A separate formal dining room near the front of the home offers an elegant setting for gatherings and special occasions. The primary suite is conveniently located on the main floor, creating a private retreat with easy accessibility, while an additional downstairs guest bedroom provides flexibility for visitors or multi-generational living.
Upstairs, secondary bedrooms are complemented by a spacious recreation area that works perfectly as a media room, game space, or second living area, with direct access to the upper rear porch for even more impressive creek views. With three full baths, two half baths, a wraparound front porch, and a charming courtyard-style garage, the Virginia Creek balances classic architectural appeal with modern functionality—making it an ideal home for those seeking refined coastal living with room to grow.
Have a Question?
Submit the form below and a member of our team will reach out shortly. For a more immediate response, call or text 910-406-6445
"*" indicates required fields
